![]() | |||
| L’architecture
du château Le parc à la française au XVIIIème siècle Le parc à l’anglaise au XIXème siècle Les dépendances Le Défens : la glacière et la place de l’étoile | |||


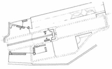
Cadastre
de 1810
Source : Inventaire typographique du Canton de Lyons (1976)

| Les
jardins anglais Les jardins français symbolisaient la monarchie absolue. Pour l'idéalisme anglais épris de liberté, le naturel était préférable à l'artificiel. Les lignes droites sont rejetées au profit des courbes ou serpentins plus doux. On apprécie, au contraire, les éléments pittoresques : champs vallonnés, méandres des cours d'eau et forêts au loin. Sous la direction de Léon de Valon , le parc est réaménagé dans cet esprit dès 1846. En 1907, Gustave Clément-Simon décrit ainsi le parc : « C’est le château classique du temps de Louis XIII, briques et pierres, un grand corps de logis en retrait avec deux ailes ou pavillons parallèles. Au milieu d’un parc dessiné à l’anglaise, où coule la Lieurre avec ses méandres et ses cascatelles, dans cette luxuriante verdure normande, sa position est admirable. Il est l’ornemnt de la gracieuse vallée qui fait son charme en se déroulant à ses pieds. Cet ensemble forme un site ravissant. » Les paddocks En 1846, à son arrivée à Rosay, Léon de Valon s’exerce à l’élevage de yearlings et aux courses avec un succès très relatif. Des paddocks sont aménagés dans le parc. Fondateur du Jockey-Club, il n’obtiendra jamais les résultats de ses voisins et amis, Mme Latache de Fay ou le Comte de Lagrange à Dangu. Avec Gladiateur, Monarque et Fille de l’Air, le Comte de Lagrange va de succès en succès. La noblesse du vexin accompagne de fêtes, raouts, bals… ces courses de chevaux. Et à l’occasion ouvre ses parcs à la population | |||
Programme
des réjouissances à Dangu en septembre1857 Mercredi 16, Jeudi 17 , Vendredi 18 Nouvelles du turf , pansements des chevaux, visite aux haras de Mme Latache de Fay. Billard, boules, jeu de quilles, cricket, trapèze, balançoire, jeu des quatre chapeaux, jeu au tonneau, partie de paume. Pêche à la ligne, chasse à tir, battue, pigeon’s shooting . Fleuret , épée, sabre, gymnastique, luttes, boxes. Acclamations, illumination, cadeaux offerts par la Beauté, discours, poémes, concerts, absinthe, cigares, diners. NOTA Pendant le séjour des « Princes du Sport », le parc est ouvert au public de 5h du matin à 10h du soir. | ![]() |
| Les
allées, ponts et vannes On remarque la multitude de chemins et allées dont se souviennent les anciens. Tous en petite gravelle et parfaitement entretenus. Les ponts, assez nombreux, étaient pour la plupart de bois peints en blanc. Ils ont à peu près tous disparu. La régulation des divers bras de la Lieure étaient assurée par des vannes et des cascades. Le portail d’entrée n’est pas dessiné ni l’actuel chemin d’entrée. | |||
| Les dépendances | ||
| ||
La ferme du château (1) Propriété de M.Quevillon, fils du premier acheteur du château. | La
déviation du chemin vicinal (2) |
![]() | ![]() |
La maison du concierge (3) La maison du concierge qui sonnait la cloche pour prévenir les valets de l’arrivée d’un hôte de marque. Le cours de la Lieure dévié pour le relever et créer une chute d’eau au moulin près de l’église. | Le cours naturel de la Lieure (3) A droite près de la route, il y avait un lavoir avec abri. Construction votée par le conseil en 1882. |
![]() | ![]() |
La
remise à voiture (5) Les cochers vivait dans les appartements au-dessus de la remise. A gauche, aujourd’hui disparu, le four à pain. | |
![]() | |
Le
petit pavillon (6) | Les chenils à droite du petit pavillon (6) Le Comte de Valon entretenait une meute pour la chasse à courre. |
![]() | ![]() |
Les écuries (8) Aménagées actuellement en salle de réception | Les « box » (10) Construits par le Comte de Valon et parfois désignés comme pavillon de chasse sur les cartes postales. « il s’agit en fait de box comme on les appelait en 1920 », se souvient Louis Bénard. Actuellement, chambres d’hôtes. |
![]() | ![]() |
Le jardin potager (8) Le grand pavillon, demeure du jardinier. D’après cliché de l’abbé Bretocq. | Ce qu’il reste du grand pavillon (8) le plancher et la cave. La maison, en ruine dans les années 70, sera démontée. |
![]() | ![]() |
L’une
des entrées du potager ! (9) | Vivier (12) sur un bras de la Lieure, en face des « Box ». Ouvrage récent, construit dans les années 1960 |
![]() | ![]() |
L’orangerie
et la serre (10) Ce qu’il reste de la serre, qui fut, on l’imagine splendide. Il faut attendre 1820 pour voir les premières serres en France. | Vue générale du potager (9) cliché de l’abbé Bretocq dans les années 30. On remarque à droite, l’orangerie qui était accolée à la serre. Il n’en reste rien aujourd’hui. Allée centrale avec arceaux métalliques |
![]() | ![]() |
Les
pièces d’eau (13) L’une des pièces d’eau, derrière le château. Au premier plan, une allée et l’un des très nombreux ponts de bois, le plus souvent blancs. |
L’allée rectiligne d’ormes (13) Encore présente aujourd’hui, même si ses arbres sont bien malades, cette allée suivait le cours rectiligne de la Lieure qui coulait depuis le Roule. Cette allée rectiligne, qui date des Frémont, a été épargnée par le Comte. Son tracé est dans l’axe du château et de la vallée vers Ménesqueville. A gauche, un sentier présent sur le cadastre |
![]() | |
La « Fosse Auberge » (14) Située au Roule, la « Fosse Auberge » était inondée dans les périodes de gel, par l’ouverture de vannes. (située au fond près de la départementale et de la maison d’une personne âgée) A gauche sur le cliché, il y avait un lavoir. | |
![]() | |
| Le Défens : la glacière et la place de l’étoile | ||
| La glacière | ||
| L’histoire des glacières Des glacières existent déjà dans le Moyen-Orient 2 000 ans avant notre ère. En Chine, aux environs de -1000, la glace n’est distribuée qu’aux personnes aisées. Les Grecs puis les Romains l’utilisent à des fins alimentaires mais également médicinales. Saladin, sultan d'Égypte, offrira un sorbet à Richard Coeur de Lion, au XIIe siècle ! En Europe, les glacières disparaissent lors des invasions des IVème et Vème siècle. On recommence à conserver la glace en Occident lorsque Catherine de Médicis rapporte d'Italie le secret des sorbets. Henri III, puis Louis XIV en seront très friands. Le commerce de la glace s'intensifie à partir du XVIIème siècle. Privilège royal, son commerce devient libre à la Révolution. Au XVIIIe siècle, de très nombreux châteaux sont pourvus de glacières. La glacière du bois de Boulogne (16 000 m3) est construite par la ville de Paris en 1857 pour approvisionner la capitale en glace Cette glacière sera détruite par le feu en 1868 ! Pour compléter l'approvisionnement, on importe, à partir de 1873, de la glace des pays nordiques. Cette glace débarque au Havre, à Rouen et à Bordeaux. À la fin du XIXe siècle, la glace artificielle, produite en toute saison, se substitue à la glace naturelle, et les glacières sont définitivement abandonnées après 1914. Aujourd'hui, seules subsistent des glacières maçonnées (de nombreuses glacières étaient en bois). Ces édifices sont récemment sortis de l'oubli ; certains sont restaurés, et l'histoire de ces constructions et celle du commerce de la glace naturelle, qui a duré plusieurs siècles, commencent à ressurgir. La construction Les glacières sont constituées d'une cuve enterrée, maçonnée, le plus souvent de forme tronconique, surmontée d'une coupole. Les matériaux utilisés sont la pierre de pays ou la brique mais aussi le bois. La porte extérieure de chargement est orientée au Nord. Sous la cuve, on creuse un puisard ou une rigole, avec une canalisation qui évacue l'eau de fusion. Les glacières à usage privé ont des diamètres compris entre 4 et 5 mètres, et un volume de 50 à 100 m3. Remplissage et extraction de la glace. Les glacières étaient remplies en hiver, dès que la quantité de glace formée était suffisante. La «récolte» devait être rondement menée. Les blocs de glace arrivaient par chariots, ou à dos d'homme dans des hottes ; ils étaient soigneusement empilés. Lorsque le niveau supérieur de la cuve était atteint, on étalait un épais matelas de paille, lui-même recouvert de madriers. Le déchargement, en principe effectué de nuit, était généralement étalé de mai à octobre, selon les besoins. Un ou deux ouvriers pénétraient dans la cuve par un sas, retiraient partiellement la couverture isolante et brisaient la glace à l'aide d'un ciseau d'acier ; les morceaux prélevés étaient remontés dans le sas à l'aide de cordes et de poulies. Les blocs de glace étaient enveloppés dans de grosses toiles, puis chargés sur des chariots garnis de paille ; ils gagnaient alors leur lieu d'utilisation. La glacière du château de Rosay. La glacière du château est située à proximité du parc, dans le bois du Défens. Son entrée est visible depuis la route de Lyons. Répertoriée dans l’inventaire typographique du canton de Lyons en 1976, les auteurs n’indiquent pas l’époque de sa construction. On peut supposer qu’elle date du XVIIIème, construite par le Marquis de Frémont. On reste impressionné par le soin apporté à cet ouvrage en briques ainsi que par son relatif bon état de conservation. L’édifice est enterré à flanc de colline, formé d’une cuve circulaire : conique dans sa partie inférieure et surmontée d’une coupole de briques. Il faut se munir d’une torche et rester prudent car l’entrée est en pente. Son volume, d’environ 50m3, est classique pour une glacière de château. Bien réalisée, elle permettait de conserver sur une saison de six mois, 10m3 de glace sur les 50m3 déposés. La glace était récupérée au lieu-dit « la fosse auberge » (14) d’écriture ou de sens curieux. Ce lieu-dit, noté sur l’actuel cadastre, est situé au Roule, en contre-bas de la côte de la Chaine. Il suffisait lors des périodes de gel d’ouvrir une vanne sur la Lieure et d’inonder ces terres. La glace qui se formait était transportée en tombereau à six cent mètres de là, dans la glacière. | ||
|
![]() | ![]() |
La
« place de l’Etoile » | |
La table photographiée par l'abbé Bretocq. | ![]() Ce qu'il reste de la table en 2000. ![]() Deux des trois bancs restants. |
| Aux
siècles précédents, le bois du Défens était propriété du château. Il est situé
de l’autre coté de la route de Lyons. Utilisé comme réserve de chasse par le Comte
de Valon, ce bois était clôturé d’un petit grillage qui retenait les lapins. Quelques
dizaines de mètres d’ascension à partir de la glacière et l’on parvient à une
clairière qui rappelle une place avec sur son pourtour trois bancs de pierre qui
ont survécu au temps et au pillage. On imagine qu’il devait y en avoir près d’une
dizaine au XIXème siècle ; au centre, le piétement métallique d’une imposante
table de pierre circulaire. Lui seul a résisté au temps. Plusieurs chemins partent
en étoile depuis cette place. Louis Bénard, né en 1913, se souvient: « Les chasseurs se postaient dans ces chemins. En bordure, on avait disposé de petites bassines de pierre. Inclinées pour éviter que les petits ne s’y noient, elles servaient de point d’eau au gibier. Les bouquets d’arbres portaient les noms d’êtres chers, Apollonie pour l'un, bouquet d'Hélène pour l'autre ». On peut aisément comprendre pourquoi les marchands de bois ne parviendront pas, malgré tous leurs arguments, à obtenir le prolongement de la ligne de chemin de fer vers Lyons. A l’époque, le vicomte René de Valon était Conseiller Général du Canton de Lyons et Vice-Président comme son père du Conseil Général de l’Eure. La ligne de chemin de fer serait passée près de la route, entre le château et le Défens. Le bois du Défens appartient actuellement à Monsieur Quevillon. On y chasse le sanglier ou le chevreuil. | ||